REQUEST A TOUR If you would like to see this home without being there in person, select the "Virtual Tour" option and your advisor will contact you to discuss available opportunities.
In-PersonVirtual Tour

$ 449,900
Est. payment /mo
Active
53 Bain AVE West Nipissing, ON P0H 1G0
2 Beds
1 Bath
UPDATED:
Key Details
Property Type Single Family Home
Sub Type Detached
Listing Status Active
Purchase Type For Sale
Approx. Sqft 1100-1500
Subdivision Cache Bay
MLS Listing ID X12409084
Style Bungalow
Bedrooms 2
Tax Year 2025
Property Sub-Type Detached
Lot Depth 132.0
Lot Front 55.0
Appx SqFt 1100-1500
Property Description
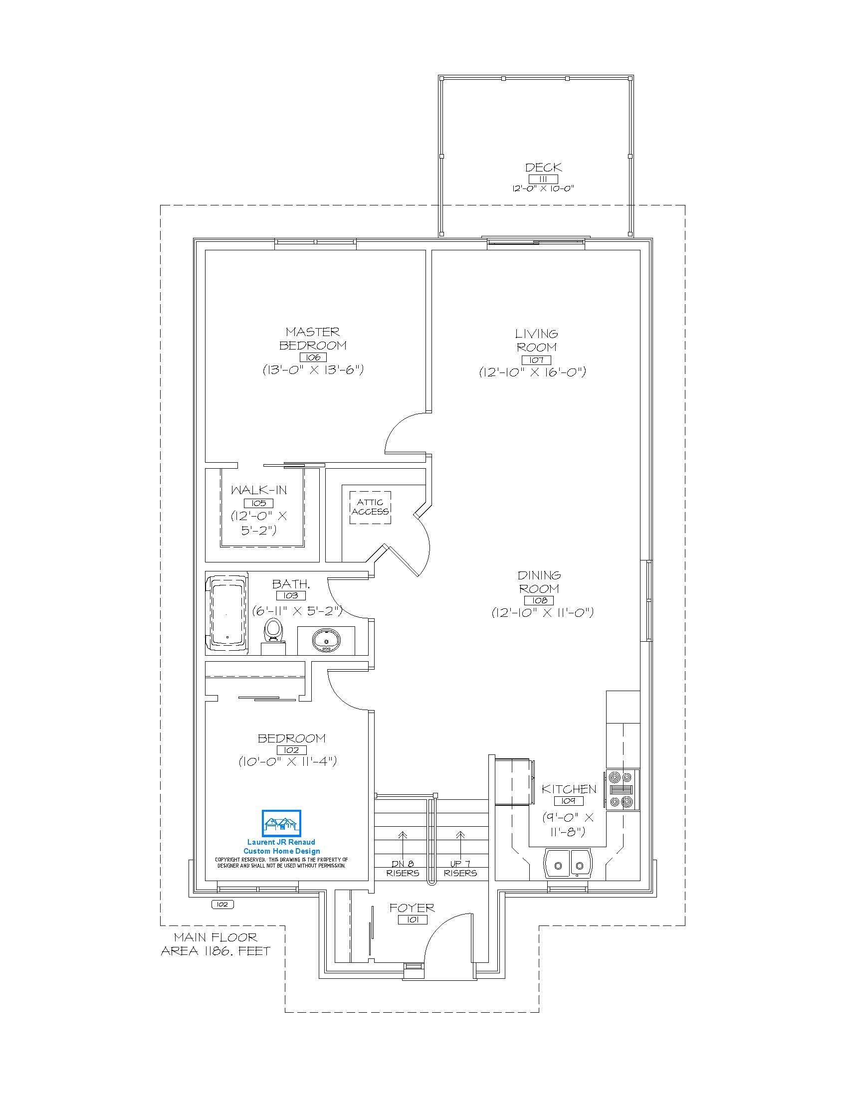
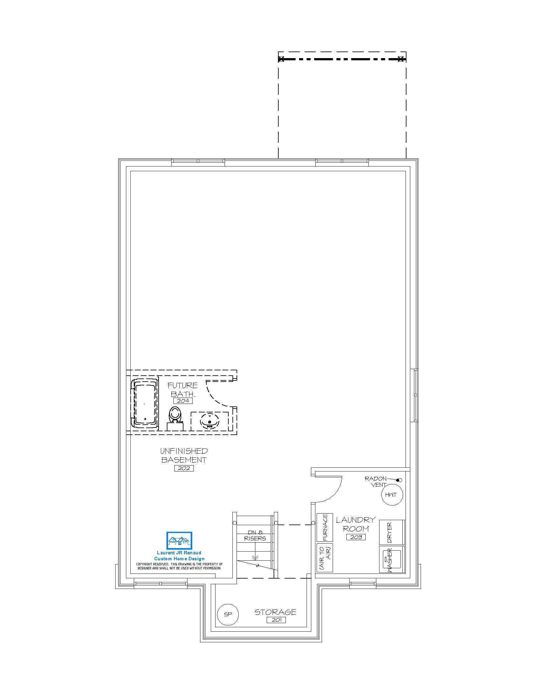
This New build is brought to you by Champagne Custom Home Builders, offering an 1168 sq ft 2 Bedroom Bungalow with split entry to full unfinished basement, will be located in the quiet community of Cache Bay. Sitting on a 50 x 132 ft fully serviced lot this open concept layout will offer plenty of space to grow! Buyers will have a choice from builders samples of flooring, paint and lighting. Home will have custom built kitchen cabinets, Natural gas forced air heating along with A/C, The lower level is a blank canvas, a wide open space with Laundry room and Bathroom rough in. 10 x 12 ft deck will overlook the back yard.- Buyers to sign HST rebate back to the builder. Listed at $449,900.00 including HST.
Location
Province ON
County Nipissing
Community Cache Bay
Area Nipissing
Zoning R2
Rooms
Family Room No
Basement Full, Unfinished
Kitchen 1
Interior
Interior Features Air Exchanger, Sump Pump, Carpet Free
Cooling None
Exterior
Exterior Feature Deck
Parking Features Private
Pool None
Roof Type Asphalt Shingle
Lot Frontage 55.0
Lot Depth 132.0
Total Parking Spaces 4
Building
Building Age New
Foundation Concrete Block
Others
Senior Community No
ParcelsYN No
Listed by Royal LePage Northern Life Realty, Brokerage

GET MORE INFORMATION
TORONTO NEIGHBOURHOODS
- Luxury Toronto Homes for Sale
- Homes for sale in Midtown Toronto HOT
- Condos for sale in Midtown Toronto
- Homes for sale in Davisville Village
- Homes for sale in Leaside
- Homes for sale in Bennington Heights
- Homes for sale in Chaplin Estates
- Homes for sale in Rosedale
- Homes for sale in Lawrence Park
- Homes for sale in Moore Park
- Homes for sale in Deer Park
- Homes For sale in Sherwood Park
- Homes for sale in Casa Loma
- Homes for sale in Summerhill
- Homes for sale in Yorkville
- Homes for sale in The Annex
- Homes for sale in St Lawrence Market
- Homes for sale in Leslieville
- Homes for sale in North Riverdale
- Homes for sale in South Riverdale
- Homes for sale in High park
- Homes for sale in Roncesvalles
- Homes for sale in The Junction
- Homes for sale in Cricket club
- Homes for sale in Hoggs Hollow
- Homes for sale in Yonge & Lawrence
- Homes sold in Leaside
- Homes Sold in Rosedale
- Homes sold in Davisville Village
- Homes sold in Lawrence Park





