REQUEST A TOUR If you would like to see this home without being there in person, select the "Virtual Tour" option and your agent will contact you to discuss available opportunities.
In-PersonVirtual Tour

$ 1,930,990
Est. payment /mo
New
2 Wedgewood TRL Scugog, ON L9L 1B2
4 Beds
3 Baths
UPDATED:
Key Details
Property Type Single Family Home
Sub Type Detached
Listing Status Active
Purchase Type For Sale
Approx. Sqft 2500-3000
Subdivision Rural Scugog
MLS Listing ID E12662094
Style Bungaloft
Bedrooms 4
Tax Year 2025
Property Sub-Type Detached
Lot Depth 126.0
Lot Front 291.0
Appx SqFt 2500-3000
Property Description
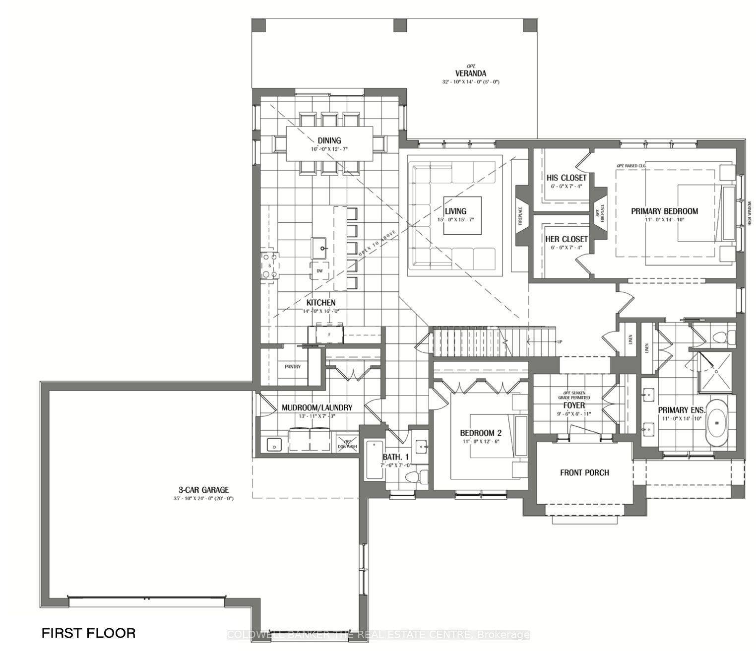
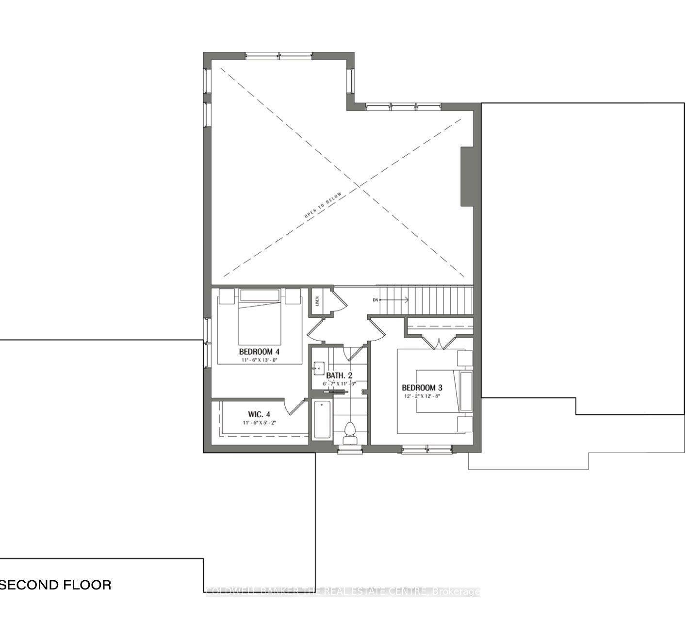
This unique Cypress Point Model has it all! 2875 sq ft of elegant open concept living space, with 4 bedrooms, 3 bathrooms, luxury designer kitchen, hardwood flooring, quartz countertops, pot lights and 3 car garage. The luxury designer kitchen with a generous size island, pantry and quartz counter space for all your entertaining. Pick your own upgrades and colour selections through the Builder to customize your home to your style. See attached Features Sheet, Bonus Plan and Floor Plan for more details. Springwinds, located in Epsom is a rare gem in a prestigious and private enclave of luxurious estate homes. Surrounded by green space and minutes from downtown Port Perry.
Location
Province ON
County Durham
Area Durham
Rooms
Family Room Yes
Basement Full, Unfinished
Kitchen 1
Interior
Interior Features Primary Bedroom - Main Floor, Water Heater, Water Meter
Cooling None
Fireplace Yes
Heat Source Propane
Exterior
Garage Spaces 3.0
Pool None
Roof Type Asphalt Shingle
Lot Frontage 291.0
Lot Depth 126.0
Total Parking Spaces 9
Building
Building Age New
Foundation Concrete
Others
ParcelsYN No
Listed by COLDWELL BANKER THE REAL ESTATE CENTRE

GET MORE INFORMATION
TORONTO NEIGHBOURHOODS
- Luxury Toronto Homes for Sale
- Homes for sale in Midtown Toronto HOT
- Condos for sale in Midtown Toronto
- Homes for sale in Davisville Village
- Homes for sale in Leaside
- Homes for sale in Bennington Heights
- Homes for sale in Chaplin Estates
- Homes for sale in Rosedale
- Homes for sale in Lawrence Park
- Homes for sale in Moore Park
- Homes for sale in Deer Park
- Homes For sale in Sherwood Park
- Homes for sale in Casa Loma
- Homes for sale in Summerhill
- Homes for sale in Yorkville
- Homes for sale in The Annex
- Homes for sale in St Lawrence Market
- Homes for sale in Leslieville
- Homes for sale in North Riverdale
- Homes for sale in South Riverdale
- Homes for sale in High park
- Homes for sale in Roncesvalles
- Homes for sale in The Junction
- Homes for sale in Cricket club
- Homes for sale in Hoggs Hollow
- Homes for sale in Yonge & Lawrence
- Homes sold in Leaside
- Homes Sold in Rosedale
- Homes sold in Davisville Village
- Homes sold in Lawrence Park



